Description
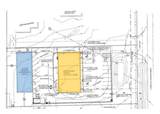
3 Unit, 4,500 SF attractive retail center on Route 91 with a high traffic location right across from Dunlap High School. This property provides an excellent opportunity for a business owner to own their building and have investment income from other units, or to be leased out as a pure investment. Units A and C are available for lease and Unit B is leased to Debbie's Slots and Gaming Lounge. County approved plans to add another building and additional parking to the property on the West side for an additional 3,000 Sq. Ft. of building. NDA required for financial information on leased unit.
-
0BEDS
-
0.86ACRES
-
0BATHS
-
01/2 BATHS
School Ratings & Info
Description
3 Unit, 4,500 SF attractive retail center on Route 91 with a high traffic location right across from Dunlap High School. This property provides an excellent opportunity for a business owner to own their building and have investment income from other units, or to be leased out as a pure investment. Units A and C are available for lease and Unit B is leased to Debbie's Slots and Gaming Lounge. County approved plans to add another building and additional parking to the property on the West side for an additional 3,000 Sq. Ft. of building. NDA required for financial information on leased unit.
© 2026 RMLS Alliance, LLC. All rights reserved. IDX information is provided exclusively for consumers' personal, non-commercial use and may not be used for any purpose other than to identify prospective properties consumers may be interested in purchasing. Information is deemed reliable but is not guaranteed accurate by the MLS or Logan Frazier Homes | The Real Estate Group. Data last updated: 2026-01-14T14:44:48.203.
